Przedstawiona oferta cenowa ma charakter informacyjny, nie stanowi oferty handlowej w rozumieniu Art.66 par.1 Kodeksu Cywilnego.
Nowoczesny charakter
Szafirowe Osiedle obejmuje 21 bliźniaków, czyli łącznie 42 segmenty. Na terenie tej przytulnej enklawy znajduje się m.in. wspólny plac zabaw dla dzieci i siłownia na wolnym powietrzu.
Rodzinne wnętrza
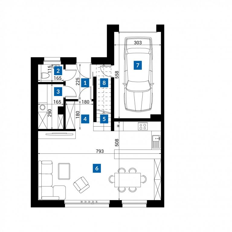
Każdy dom ma 140 m² powierzchni użytkowej z garażem. Wnętrza są bardzo przestronne oraz maksymalnie funkcjonalnie – oprócz 4 pokoi znajduje się w nich miejsce na pralnię i dwie garderoby.
Naturalna przestrzeń
Mieszkańcy mają do dyspozycji tarasy oraz duże indywidualne ogródki. Można w nich komfortowo odpocząć na świeżym powietrzu, bawić się z dziećmi, uprawiać rośliny i organizować spotkania z bliskimi.




























































